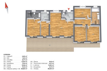
Půdorysy nemovitostí
Pro představu zcela reálné dispozice konkrétní nemovitosti vytváříme půdorysy, které jsou nezbytnou součástí profesionální prezentace nemovitostí.

Pro reálnou představu o dispozici nemovitosti
Půdorys je nezbytnou součástí profesionální prezentace nemovitosti, jelikož naprosto přesně reflektuje reálnou dispozici konkrétní nemovitosti a potenciálnímu zájemci tak ve finále doplňuje jeho vizuální představu dané nemovitosti.
3D půdroys nemovitosti již od 990 Kč...
Pro nabídku na konkrétní nemovitost nás prosím kontaktujte.
Objednejte si půdorys
Máte zájem o 3D půdorys nemovitosti? Napište nám základní informace o nemovitosti a společně doladíme detaily.









